Umkehrosmosegerät PRO-400

Beschreibung
Die RO Bluewater Pro (ehemals DOMETIC und ehemals Electrolux) PRO-400 ist ideal für gewerbliche Anwendungen und Labors verbrauchen erhebliche Mengen an RO-Wasser. Sehr einfach zu installieren, keine Wasservorbehandlung (auch wenn es sehr schwer ist), schön anzusehen, es sieht mehr wie ein Computer oder ein Gerät zu einem klassischen HiFi-Osmose erfordern
Compact, produziert sie mindestens 2,5 l/min RO-Wasser. Die LEDs auf dem Bedienfeld, um die Wasserqualität ständig zu überwachen. Eine steuerbare von Smartphone-Version ist in Entwicklung.
Technische Daten

| Technische Informationen |
||
| Spannungsversorgung | 230 VAC, 50 Hz, einphasig | |
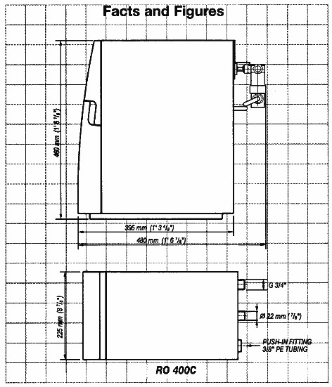
| Abmessungen | 48 cm x 22.5 cm x 46 cm (Zeichung mit Abmessungen unten) | |
| Eingangsanschlüsse | Gas 3/4 '' (wie Waschmaschinen) - Premieren konzentrieren M22, Ausfahrt dringen Schneller Anschluss 3/8 '' | |
| Speisewasser |
|
|
| Besondere Merkmale |
|
|
| Unterdrückung | >98% | |
| Wiederfindungsrate | etwa 50% | |
| Gewicht | 29 kg | |

Verbrauchsmaterial
- Filter I (Vorfilter)
- Filtre II (Aktivkohle)
